valetta
Valetta
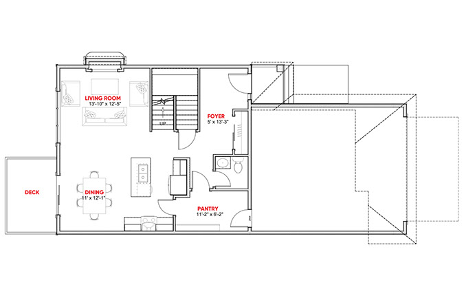
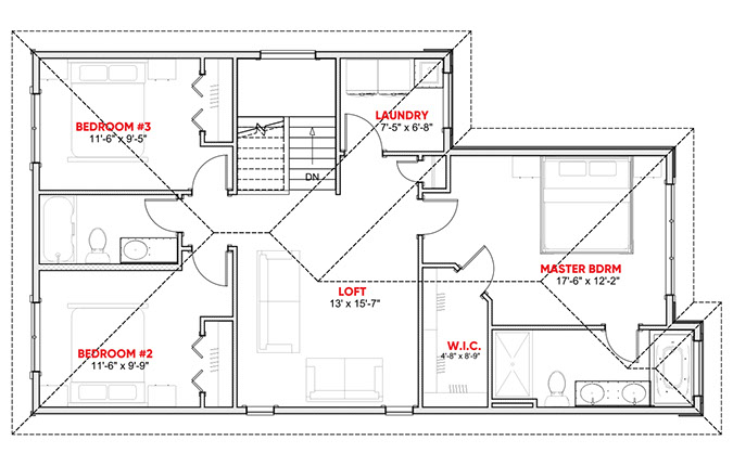
2 Storey, 1,812 sq.ft.
Features:
- Custom Design
- 3 Bedrooms
- 3 Bathrooms
- Ensuite
- Foyer

786 sq.ft.
1,026 sq.ft.

2 Storey, 1,812 sq.ft.
Features:
